Enebolig 2117 treff

Et fotografi av en tegning (kalt 'kartsnitt') som viser en bygning og en vei.
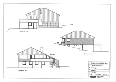
Extension Enebolig

Tilbygg og bruksendring på enebolig i Bekkjarvikveien 69, Bergen

Ny to-etasjes tilbygg på eksisterende enebolig i Bekkjarvikveien 69 med et bruksareal på ca. 48 m², bestående av sovero…

πŸ“ Bekkjarvikveien 69 Bergen
En tegning som viser fasader (opp- og tverrsnitt) og etasjeplaner for en bygning.
ChangeOfUse Enebolig

Bruksendring og fasadeendring i enebolig på Øvre Lyngbø 21, Bergen

Bruksendring av kjelleretasje på 28,3 m² i en eksisterende enebolig, hvor kjellerarealet endres fra tilleggsdel til hov…

πŸ“ Øvre Lyngbø 19 Bergen
Fasadetegning av en bygning sett fra sør, med omgivende terreng og trær.
ChangeOfUse Enebolig

Bruksendring og ny garasje på Stamerbakken 5, Bergen

Eksisterende enebolig fra 1939 gjennomgår en omfattende oppgradering med bruksendring fra tilleggsdel til hoveddel, fas…

πŸ“ Stamerbakken 5 Bergen
Snittegning som viser bygningens tverrsnitt, høyder og grunnplan i forhold til terreng.
ChangeOfUse Enebolig

Bruksendring i enebolig på Råtun 50, Bergen

Bruksendring i en enebolig med sokkelleilighet på Råtun 50 i Bergen. Tiltaket omfatter innlemming av opprinnelig felles…

πŸ“ Råtun 50 Bergen
Bildet viser en samling tegninger for et takopplett, inkludert fasade mot nordøst, sørvest og nordvest, samt et snitt og etasjeplan.
ChangeOfUse Enebolig

Bruksendring og takopplett på loft i enebolig, Janaberget 44

Bruksendring av eksisterende kaldloft (tilleggsdel) til oppholdsrom (hoveddel) i enebolig på Janaberget 44. Loftet innr…

πŸ“ Janaberget 44 Bergen
Fotografi av en bakgård eller hageområde mellom to hus, med diverse gjenstander som oppbevares under telt.
Extension Enebolig

Tilbygg til enebolig på Feråsen 99, Bergen

Ny tilbygg på ca. 10 m² til eksisterende enebolig på Feråsen 99 i Bergen. Tilbygget inkluderer et nytt soverom og endri…

πŸ“ Feråsen 99 Bergen
Fasadetegning som viser bygningens utsyn mot nord, vest og bak (mot Bli).
ChangeOfUse Enebolig

Bruksendring i enebolig på Hjellestadvarden 2, Bergen

Bruksendring av 43 m² i kjelleretasjen i en eksisterende enebolig på Hjellestadvarden 2. Kjelleretasjen på 80 m² inneho…

πŸ“ Hjellestadvarden 2 Bergen
Plantegning som viser eksisterende og foreslått tilstand for vinduer i en bygning.
Extension Enebolig

Innsetting av innvendige vinduer i brannvegg, Haukelandsbakken 27

Innvendige vinduer settes inn i eksisterende brannskillevegg i plan 2 av BB-bygget ved Universitetet i Bergen, Haukelan…

πŸ“ Jonas Lies vei 91 Bergen
Fasadetegning som viser bygningens utseende fra fire sider (Sør, Nord, Øst, Vest).
Extension Enebolig

Tilbygg, fasadeendring og bruksendring på enebolig, Grimseidholmen 16

Tilbygg på eksisterende enebolig med tilhørende fasadeendringer og endring av bruk innenfor boligens areal. Prosjektet …

πŸ“ Grimseidholmen 16 Bergen
3D-visualisering av en moderne enebolig sett fra siden, med visuell fremstilling av fasade, tak, grunn og omgivelser.
VerticalExtension Enebolig

Påbygg og bruksendring på enebolig i Løtveitveien 3, Bergen

Ny påbygg over eksisterende garasje med gang, bad og soverom, med tak som forlengelse av eksisterende saltak. Utvidelse…

πŸ“ Løtveitveien 3 Bergen
Oppriss (fasadetegning) som viser bygningens høyde, etasjer, takform og dimensjoner.
Extension Enebolig

Tilbygg, fasadeendring og bruksendring på enebolig i Bøneslien 2

Ny tilbygg på 57 m² med flatt tak på nordside av eksisterende horisontaldelt tomannsbolig i Bøneslien 2. Tilbygget tilf…

πŸ“ Bøneslien 2 Bergen
En samling av fire 3D-visualiseringer (renderinger) av et husprosjekt, vist fra ulike vinkler.
Extension Enebolig

Tilbygg med bod, takark og terrasseendring i Lægdesvingen 21B, Bergen

Prosjektet omfatter oppføring av en ny frittstående bod på ca. 3 m² tilknyttet en horisontaldelt tomannsbolig, samt end…

πŸ“ Lægdesvingen 21B Bergen
Fotografi av et tak med takpanner, sett fra siden. Bildet viser også deler av nabohus og bakgrunn med fjell.
Extension Enebolig

Ettergodkjenning av tilbygg og påbygg på Krohnegården 9A, Bergen

Ny ettergodkjenning av et tilbygg på 23 m² med to soverom, bod, badstu og gang i underetasjen, samt et påbygg i form av…

πŸ“ Krohnegården 9A Bergen
3D-visualisering av en moderne bygning sett fra utsiden, med fokus på fasade, trapp og omgivelser.
Extension Enebolig

Tilbygg og riving på enebolig i Rådalslien 9, Bergen

Ny utvidelse av eksisterende enebolig i Rådalslien 9 med et tilbygg på ca. 26 m², inkludert riving av veranda og endrin…

πŸ“ Rådalslien 9 Bergen
3D-visualisering (perspektiv) av en bolig med to etasjer, balkong og trapp, vist fra to ulike vinkler.
Extension Enebolig

Tilbygg og garasje med terrengstøttemur i Skraneskogen 23, Bergen

Prosjektet omfatter tilbygg til eksisterende enebolig med sekundærleilighet, ny frittstående garasje på ca. 50 m² med t…

πŸ“ Skraneskogen 23 Bergen
3D-visualisering (rendering) av et byggeprosjekt sett fra en vinkel som viser både bygninger, terreng og trær.
NewConstruction Enebolig

Ny enebolig med garasje på Østre Nordeidbrekka 39, Bergen

Ny enebolig med integrert garasje oppføres på Østre Nordeidbrekka 39 i Bergen. Boligen har et bruksareal på 258,9 m² fo…

πŸ“ Østre Nordeidbrekka 39 Bergen
3D-visualisering av en villa med omgivelser, vist fra to ulike vinkler.
Extension Enebolig

Tilbygg, fasadeendring og bruksendring på enebolig i Akslabakken 23

Ny utbygging består av et mindre tilbygg på ca. 23 m² på vestsiden av eksisterende enebolig, med hevet tak og endret ta…

πŸ“ Akslabakken 23 Bergen
Fotografier av idrettsanlegg (fotballbane, basketballbane, curlingbane) og skolen ved Søreide skole.
NewConstruction Enebolig

Ny enebolig med dispensasjon i Ekerdalen, Bergen

Ny enebolig planlegges oppført på en uregulert resttomt på ca. 587 m² i Ekerdalen, Bergen. Boligen er skissert med et f…

πŸ“ Ekerdalen 1 Bergen
3D-visualisering av en grønn husmodell med omgivende terreng og nabohus.
ChangeOfUse Enebolig

Bruksendring og fasadeendring på enebolig, Nordre Skansemyren 12, Bergen

Bruksendring av deler av en eksisterende enebolig på Nordre Skansemyren 12, Bergen, med et totalt areal på ca. 251 m² B…

πŸ“ Nordre Skansemyren 12 Bergen
Fasadetegning som viser bygningens utseende sett fra nord og vest.
ChangeOfUse Enebolig

Bruksendring og fasadeendring på enebolig i Fleslandsvegen 18, Bergen

Eksisterende enebolig på 101,2 m² med saltak og trekledning gjennomgår bruksendring av kjeller og boder fra tilleggsdel…

πŸ“ Fleslandsvegen 18 Bergen
Fasadetegning av en bolig ved Flaktveittræet 61, sett fra øst. Tegningen viser fasadens utforming, vinduer, balkong og mål (bredde 10,00 m, høyde 4,00 m).
VerticalExtension Enebolig

Påbygg og fasadeendring på enebolig, Flaktveittræet 61

Ny arkoppbygg på loftet med et tilbygg på 6,5 m² som utvider eksisterende loftsstue, samt innbygging av eksisterende al…

πŸ“ Flaktveittræet 61 Bergen
Et sammensatt bilde (collage) som viser ulike faser av utvendige byggearbeider, inkludert terrassebygging, vindusutskifting og flislegging.
FacadeChange Enebolig

Fasadendring, bruksendring og ny garasje i Lilandsvegen 46, Bergen

Prosjektet omfatter omfattende fasadeendringer på en eksisterende enebolig fra 1966 i Lilandsvegen 46, inkludert utvide…

πŸ“ Lilandsvegen 46 Bergen
3D-visualisering (rendering) av et tomt med planlagt bebyggelse, inkludert hus, garasje, uteplasser og terrengform. Bildet viser skygger og tekstur for å gi et realistisk inntrykk.
Extension Enebolig

Tilbygg, garasje og uthus i Mildevegen 92, Bergen

Ny tilbygg på 22 m² med arkitektonisk utforming tilpasset eksisterende enebolig, ny frittstående garasje på 46,8 m² med…

πŸ“ Mildevegen 92 Bergen
3D-visualisering av fasade på en hvit villa med rødt tak, sett fra siden.
VerticalExtension Enebolig

Påbygg, fasadeendring og bruksendring i enebolig, Nils Klims gate 7, Bergen

Ny påbygg på eksisterende enebolig i Nils Klims gate 7, Bergen, med tilhørende fasadeendringer og bruksendring fra till…

πŸ“ Nils Klims gate 7 Bergen